Seelebad

Böhringen

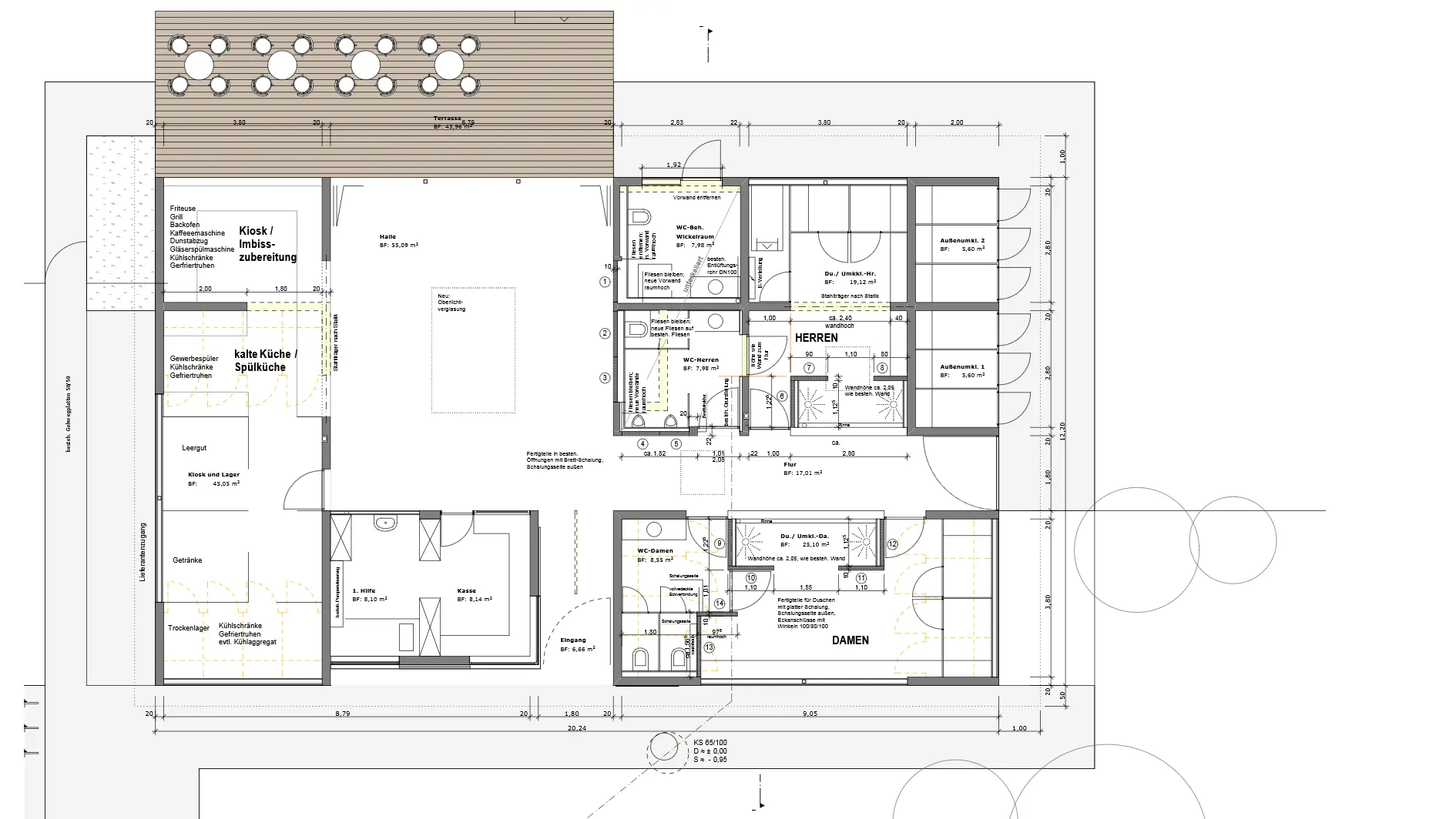
Das Gebäude der Badeanstalt am Böhringer See wurde 1968 erbaut und war inzwischen sehr sanierungsbedürftig. Die Neukonzeption sah einen Zugangsbereich mit
Kassenraum und Kiosk mit Terrasse vor. Ebenso waren Umkleideräume und Duschmöglichkeiten für die Badegäste sowie zugehörige Nebenräume mit einzuplanen. Nach dem historischen Vorbild wurden die Wände als Sichtbetonwände mit Brettstrukturschalung im Wechsel mit holzverschalten Ständerwänden erstellt. Der Boden wurde als Sichtestrich ausgeführt und das Dach komplett saniert. Der von oben belichtete Innenhof öffnet sich zum See hin und bietet einen schönen Blick auf den Badeplatz.